Portfolio Details
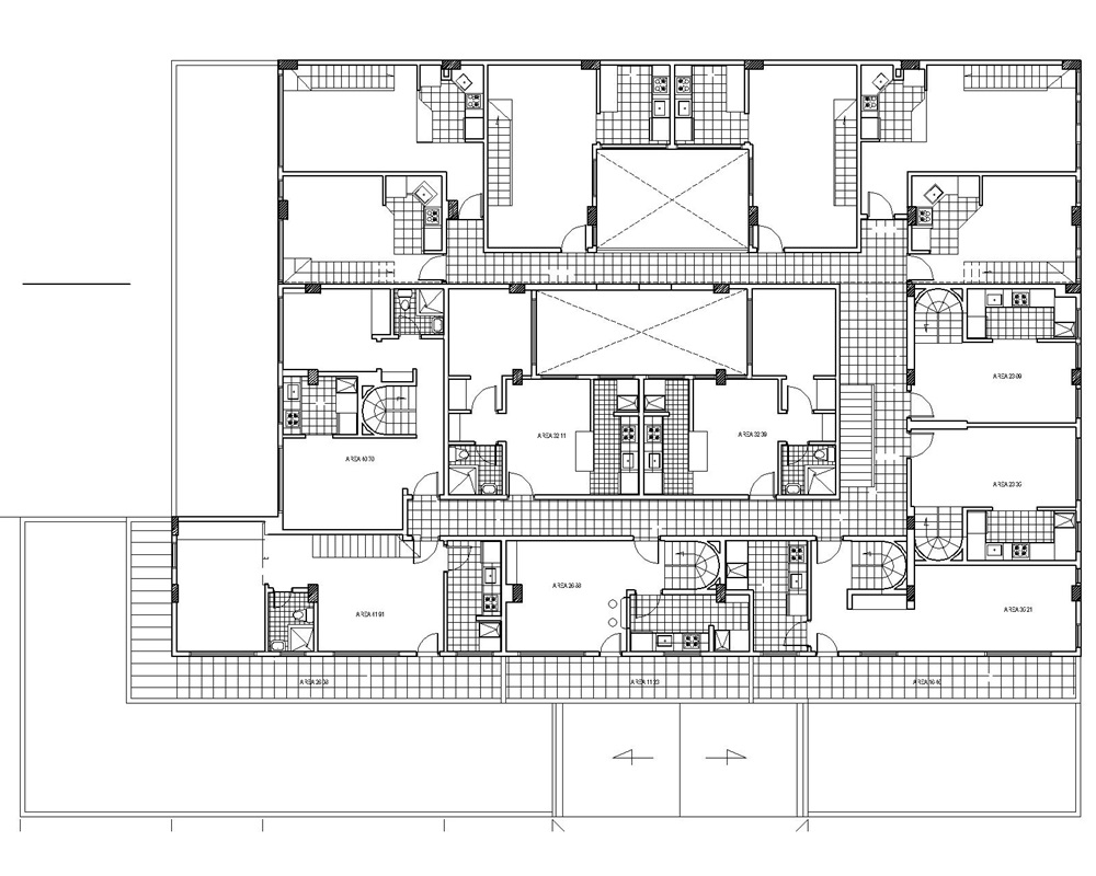
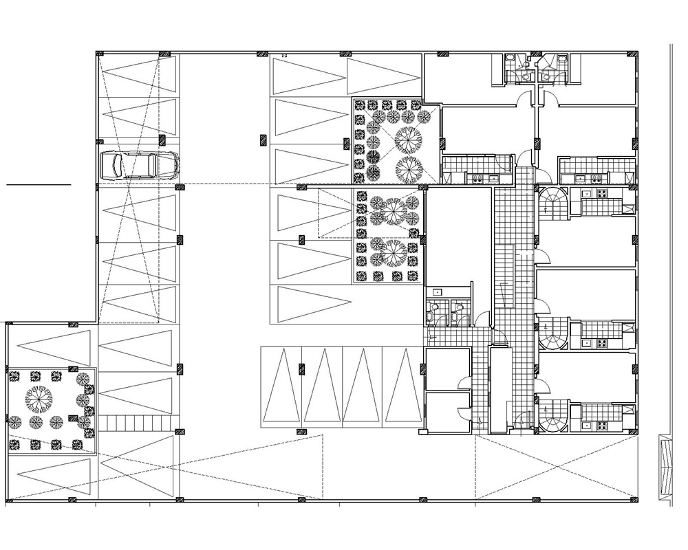
Terrazino Apartments Building Calle 43 Bogotá
Construction of a building using a reinforced concrete frame system, partition walls in masonry, deep foundation with 40 cm diameter piles, 12 meters long, reinforced on-site.
Responsibilities
Preparation of architectural and hydrosanitary network plans, comprehensive project scheduling, and timeline definition. Coordination and monitoring of the work plan, ensuring the achievement of project objectives. Procurement and supply management, ensuring material availability according to the schedule. Coordination and supervision of construction personnel to optimize performance and quality. Periodic review of project progress, with detailed compliance reports. Execution control of goals, conducting work progress evaluations. Preparation of budgets and financial control of the project. Settlement of contractors and suppliers, ensuring compliance with terms and timely payments.
Project Information
- Category Resident Architect
- Company APLIN LTDA
- Project Date April 26, 2005 - October 30, 2006